Discover Timeless Elegance
Legacy uPVC Sash Windows Technical
The Legacy uPVC Sliding Sash Windows are expertly crafted to combine classic heritage design with advanced modern technology. These sash windows deliver low maintenance, high performance, and timeless beauty—making them a perfect timber alternative for both traditional and contemporary homes.
Designed with elegance in mind, every window features near-invisible joints, run-through horns, mechanical joints, and a smooth ovolo frame that captures the authentic charm of Victorian windows. New design upgrades and a wide selection of colours give you the freedom to create a bespoke look without exceeding your budget.
- Crafted for Efficiency & Comfort: Achieve top energy ratings with multichambered frames, 24mm double glazing, argon gas inserts, and warm edge spacers—resulting in an impressive ‘A’ energy rating and a u-value of 1.4W/m²K.
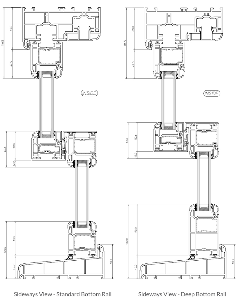
- Built to Match Traditional Timber: The new 37mm slim midrail mirrors traditional Victorian sash proportions, while the deep bottom rail, heritage hardware, and astragal bars enhance the authentic finish.
- Tailored to Perfection: Our new colour-matching woolpile strips ensure a seamless look, while the full range of premium woodgrain colour options lets you match any property style.
- Environmentally Responsible: Made with fully recyclable uPVC, these windows support sustainable living without compromising on strength or appearance.
- Enhanced Security for Peace of Mind: With an optional PAS 24:2016 upgrade, each sash window can be equipped with dual premium locks and top sash security blocks—ideal for meeting new-build regulations.


Order Premium Sash Windows Online & Get
10% Off Today
Get in Touch
Don’t Hesitate to Contact
File in our quote form or email us at:
Platinumproductsdirect@gmail.com
Or call us today at: 0800 002 9033 / 0330 111 9033
Mon-Sun (9AM - 8PM)
Platinumproductsdirect@gmail.com
Or call us today at: 0800 002 9033 / 0330 111 9033
Mon-Sun (9AM - 8PM)